The Best Location on Pico Island.

The Lovely Sunny Area of Ribeirinha on the Island of Pico is waiting for you.

Property Access

Mobirise

This stunning property is situated right on the water’s edge, offering a breathtaking coastal setting while being exceptionally well-protected from the sea. The shoreline was thoughtfully reinforced several years ago, ensuring both safety and peace of mind.
Perfectly positioned, the property is within a short, picturesque stroll to the charming little harbor—ideal for keeping a boat for leisurely outings or simply enjoying the serene waters. For those who cherish the sea, the nearby tidal rock swimming pool invites you to indulge in a refreshing morning swim, surrounded by the natural beauty of the coastline.

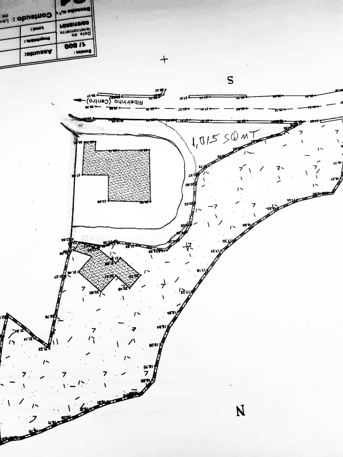
Boundaries 

Mobirise

The clearly marked boundaries elegantly outline the extent of this extraordinary waterfront property, showcasing its prime position along the sea's edge. This well-defined space highlights the expansive area available, offering a rare opportunity to own a piece of coastal paradise where breathtaking views meet endless possibilities for seaside living.

Mobirise

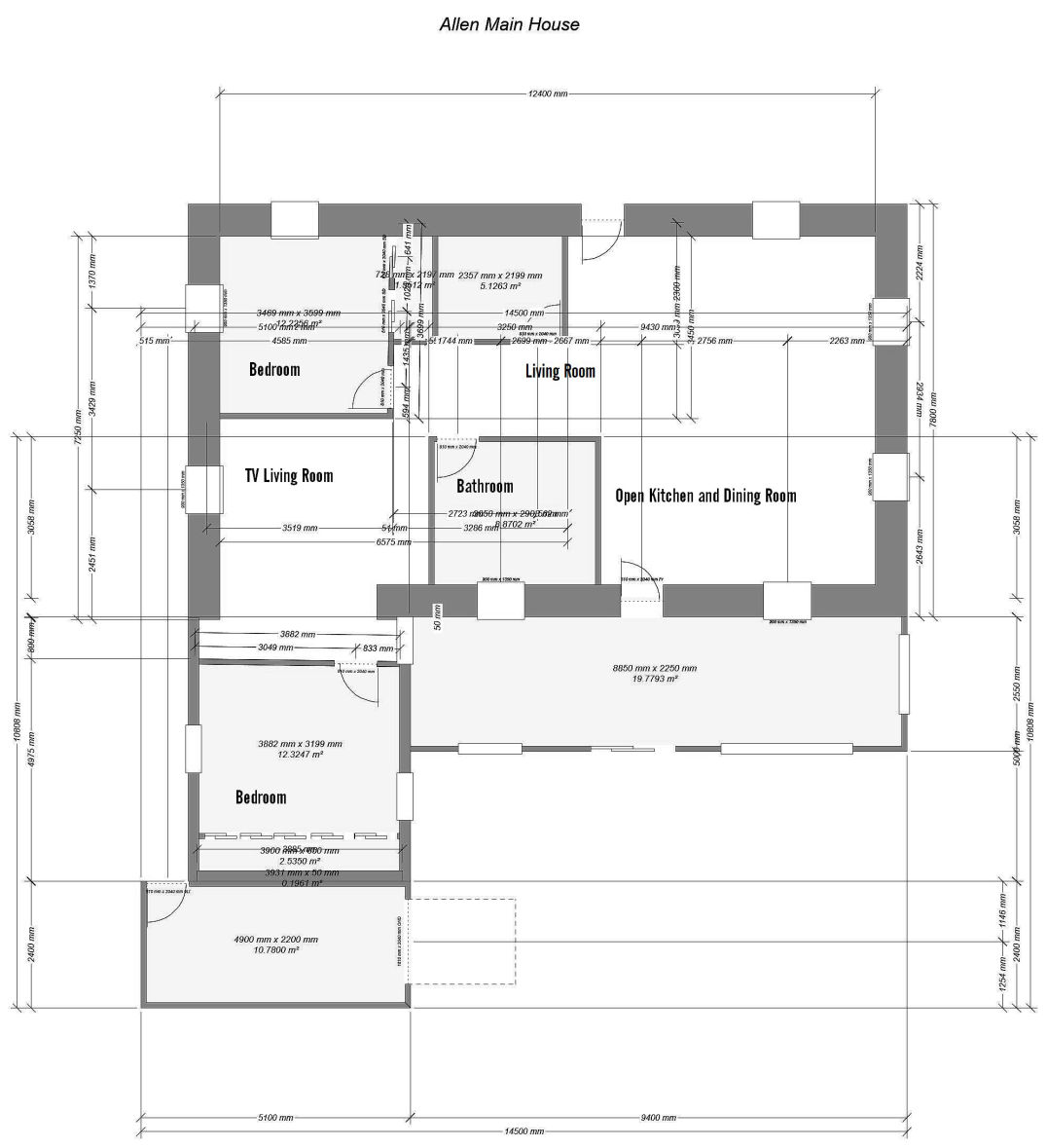
Buildings Layouts

Main House Plan

Mobirise




This exceptional home offers a perfect blend of space, comfort, and versatility.

The property features two generously sized bedrooms, ideal for relaxation and restful nights. The expansive open-plan kitchen, dining, and living areas create a seamless flow, perfect for entertaining or family gatherings. Additionally, there’s a charming second dining area enclosed with windows, transforming the space into a cozy conservatory-style retreat where you can enjoy natural light year-round.

The attached garage provides convenient access from both sides of the house, adding to the practicality of this thoughtfully designed hom

All dimensions are in meters 

Garage was not included are registered space.
Basic Dimensions of buildings:
Ribeirinha Main House
Small Cooking House 16 m/2 size 3.72 m X 4.29
Main House 50 m/2 size 12 m/2 X 7.2
size 6.2 X 5.1
Garage 12 m/2 size 7m X 3m



Cooking House Plan

Mobirise

This outdoor cooking haven is perfect for entertaining, hosting barbecues, and savoring endless summer days in style.

Designed for ultimate relaxation and enjoyment, this space allows you to gather with family and friends, indulge in delicious grilled meals, and create unforgettable memories under the sun. Whether it’s a casual afternoon cookout or a festive evening gathering, this outdoor retreat sets the scene for carefree summer living all day long.

All dimensions are in meters 

This is recently constructed. 

© Copyright 2025 Azores Dream Location. All Rights Reserved.

Made with Mobirise web page software